Verkocht

Prattenburg 84 3328 WD Dordrecht

Verkocht

Omschrijving

Altijd al in een woning willen wonen, waar weinig meer aan hoeft te gebeuren? Dan is dit je kans! Deze energiezuinige (energielabel A) eengezinswoning beschikt over een eigen parkeerplaats aan de voorzijde en heeft een zonnige, onderhoudsvriendelijke op het westen gelegen achtertuin, waar je de vogels nog kan horen fluiten. De woning is gelegen in de wijk Sterrenburg 3. Alle wensbare voorzieningen zoals basisscholen, speelweides, winkels, openbaar voorzieningen en uitvalswegen zijn op korte afstand.

De indeling is als volgt:

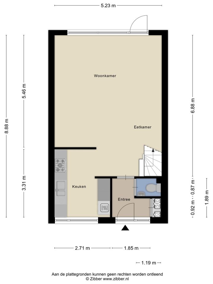
Begane grond :
* Entree in hal.
* Meterkast (10-groepen + aardlekschakelaar).
* Toilet met fonteinbakje.
* De woonkamer (afm. 6.88 / 5.48m x 5.23m) met een open trap naar de 1e verdieping is tuingericht en heeft een deur naar
de achtertuin.
* Halfopen keuken (afm. 3.31 x 2.71m) met moderne inbouwkeuken voorzien van 4-pits gaskookplaat,
koel-vriescombinatie, vaatwasser (Bosch), combi-oven, apothekerskast en afzuigkap.

1e Verdieping:
* Overloop met toegang tot de badkamer en de 3 slaapkamers en een vaste trap naar de 2e verdieping.
* Slaapkamer 1 (afm. 4.15 x 3.01m) gelegen aan de voorzijde.
* Slaapkamer 2 (afm. 4.63 x 3.01m) gelegen aan de achterzijde.
* Slaapkamer 3 (afm. 3.89 x 2.12m) gelegen aan de achterzijde.
* Nette badkamer (afm. 2.07m x 1.83m) voorzien van douchecabine, 2e toilet en wastafel.

2e Verdieping:
* Ruime bergvliering met opstelplaats van de gas cv-combiketel (merk Vaillant, bouwjaar 2015). Deze verdieping biedt
mogelijkheden tot het realiseren van een 4e slaapkamer.

Tuin:
* De volledig betegelde voortuin is gelegen op het oosten.
* De achtertuin (ca. 11 ½ m., gelegen op het westen) is onderhoudsvriendelijk. Aan de achterzijde staat een houten blokhut.

Stenen buitenberging:
* De stenen berging (afm. 3.50m x 2.16m) is aan de voorzijde van de woning gelegen.

Algemeen:
* De woning heeft de volgende extra’s: nieuwe dakpannen, 12 zonnepanelen (t.w. 4 st aan de achterzijde en 4 st aan de
voorzijde), buitenkraan aan zowel de voor- als de achtergevel, electrisch bedienbaar zonnescherm aan de achterzijde
begane grond. De woning is gedeeltelijk voorzien van HR++ glas (t.w. badkamer en de grote slaapkamer achter), de
buitenzijde is in 2024 door professionele schilders geschilderd.
* Warmwatervoorziening in de keuken middels close-in-boiler (eigendom).

Oplevering:
* De oplevering vindt plaats in overleg (indicatie: 2e helft april 2025).

Kadastrale gegevens:
Gemeente Dordrecht
Sektie Q
Nummer 7854
Grootte 147 m²
Inhoud 372 m³
Woonopp 93 m²
Bouwjaar 1977

Deze informatie is door ons met de nodige zorgvuldigheid samengesteld. Onzerzijds
wordt echter geen enkele aansprakelijkheid aanvaard voor enige onvolledigheid, onjuistheid of anderszins, dan wel de gevolgen daarvan. Alle opgegeven maten en oppervlakten zijn indicatief.

Toelichtingsclausuel NEN 2580
De vermelde afmetingen zijn vastgesteld conform de meetconstructies op basis van de NEN2580. De Meetinstructie is bedoeld om een meer eenduidige manier van meten toe te passen. De Meetinstructie sluit verschillen in meetuitkomsten niet uit, door bijvoorbeeld interpretatieverschillen, afrondingen of beperkingen bij het uitvoeren van de meting.

Koopovereenkomst pas rechtsgeldig na ondertekening:
Een mondelinge overeenstemming tussen de particuliere verkoper en de particuliere koper is niet rechtsgeldig. Met andere woorden: er is geen koop. Er is pas sprake van een rechtsgeldige koop als de particuliere verkoper en de particuliere koper de koopovereenkomst hebben ondertekend. Dit vloeit voort uit artikel 7: 2 Burgerlijk Wetboek. Een bevestiging van de mondelinge overeenstemming per e-mail of een toegestuurd concept van de koopovereenkomst wordt overigens niet gezien als een ondertekende koopovereenkomst.

Lees de volledige omschrijving

Kenmerken

Algemeen

Aangeboden sinds
6+ maanden
Status
Verkocht
Aanvaarding
In overleg
Soort woonhuis
Eengezinswoning, tussenwoning
Soort bouw
Bestaande bouw
Bouwjaar
1977
Soort dak
Pannen
Ligging
Aan rustige weg, in woonwijk

Oppervlakten en inhoud

Wonen
92 m²
Overige inpandige ruimte
13 m²
Externe bergruimte
13 m²
Perceel
147 m²
Inhoud
372 m³

Indeling

Aantal kamers
5 kamers (3 slaapkamers)
Aantal badkamers
1 badkamer
Badkamervoorzieningen
Douche, toilet, wastafel
Aantal woonlagen
3
Voorzieningen
Zonnecollectoren

Energie

Energielabel
A
Isolatie
Dubbel glas, muurisolatie
Verwarming
Cv ketel
Warm water
Cv ketel
Cv-ketel
Vaillant ( gestookt combiketel uit 2015, eigendom)

Kadastrale gegevens

Perceelnaam
Dordrecht Q 7854
Oppervlakte
147 m²
Eigendomssituatie
Volle eigendom
Perceel
DDT00-Q-7854

Buitenruimte

Tuin
Achtertuin, voortuin
Achtertuin
67 m²
Ligging tuin
West
Bekijk alle kenmerken

Overige media